PUBLIC NOTICE WESTMINSTER CITY COUNCIL
PROPOSED APPROPRIATION OF LAND AT SITE A OF THE CHURCH STREET ESTATE FOR PLANNING PURPOSES LOCAL GOVERNMENT ACT 1972 SECTION 122 HOUSING AND PLANNING ACT 2016 SECTIONS 203 & 204
Notice is hereby given by the Lord Mayor and Citizens of the City of Westminster (“the Council") that:
- Part of the land at the Church Street Estate, Westminster ("Site A") is required for development in connection with the first phase of regeneration of the Church Street Estate pursuant to planning permission with reference 21/08160/COOUT granted on 30 June 2023; planning permission with reference 24/01788/NMA granted on 8 April 2024 and planning permission with reference 24/05251/NMA granted on 19 November 2024; and planning permission with reference 25/00685/NMA granted on 30 May 2025;
- A report proposing the appropriation of Site A for planning purposes pursuant to section 122 of the Local Government Act 1972 is due to be considered at a meeting of the Cabinet Member for Finance and Council Reform in consultation with the Cabinet Member for Housing scheduled to take place on or after 7th July 2025; and
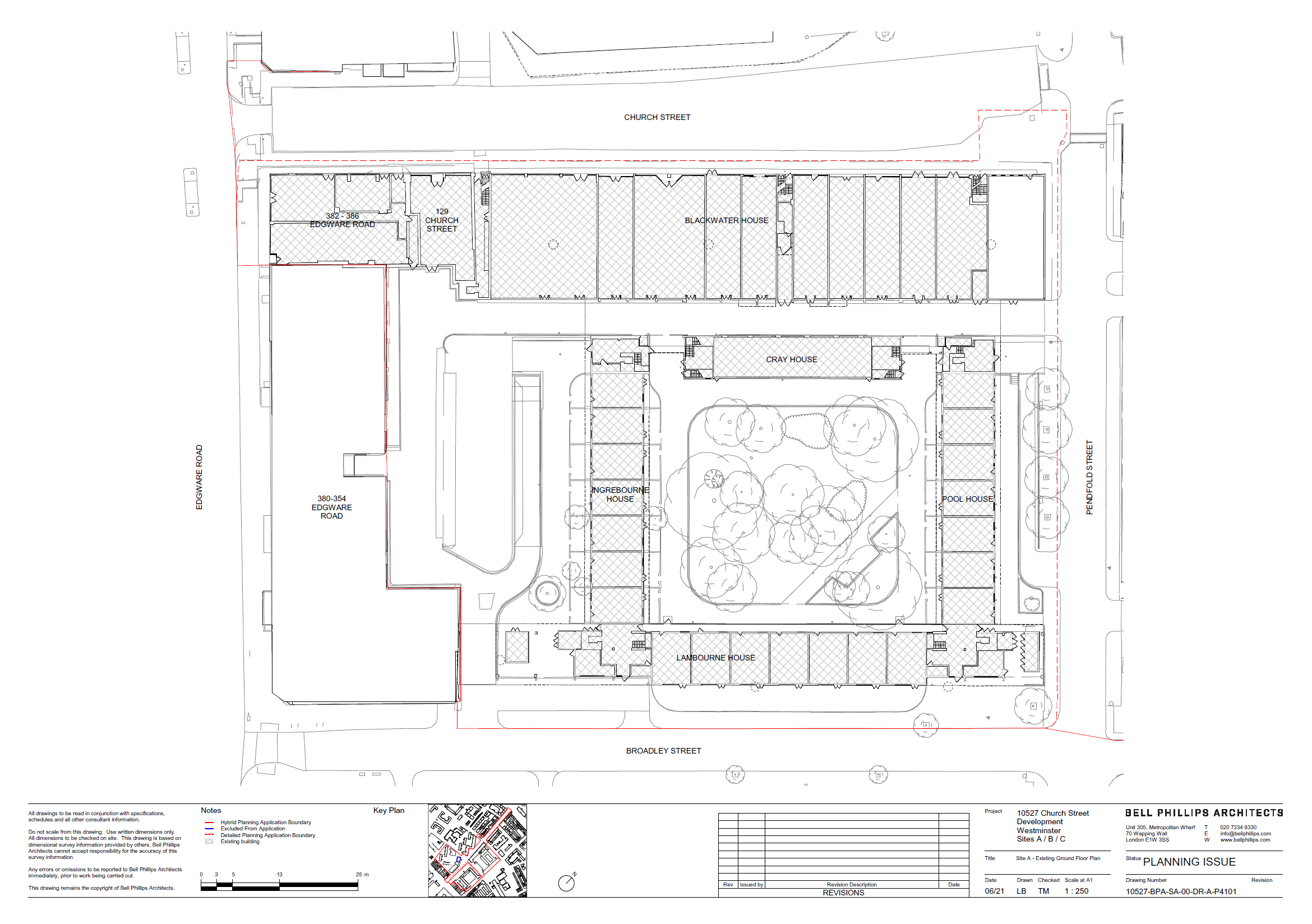
- Part of the land to be appropriated includes land which has the potential to consist of or form part of open space within the meaning of Section 122 (2A) of the Local Government Act 1972, being land used for the purposes of public recreation.
A plan showing the extent of Site A and the land which has the potential to consist of or form open space is attached alongside this notice and may be inspected at Church Street Regeneration Base, 56 Church Street, London NW8 8ET between the hours of 09:00 – 17:00, Monday to Friday. It can also be viewed on-line churchstreet.org.
In the event that the Cabinet Member for Finance and Council Reform in consultation with the Cabinet Member for Housing resolves to appropriate Site A for planning purposes, section 203 of the Housing and Planning Act 2016 would enable relevant rights and interests (such as easements which benefit other land) and contractual restrictions on the use of Site A (such as restrictive covenants) to be overridden when the development is carried out. Any person who holds the benefit of such a legal right and who suffers a relevant loss when development takes place would, in due course, be entitled to claim statutory compensation pursuant to section 204 Housing and Planning Act 2016.
Anyone who wishes to obtain further information should contact Westminster City Council by emailing [email protected], in good time before the final date for written representations referred to below.
Any person who wishes to object to the proposed appropriation or any person who considers that they have the benefit of legal right which might be interfered with or breached by the development of Site A and who wishes to object or comment on the proposed appropriation before a decision is reached is invited to write to [email protected] to arrive not later than 5pm on 27 June 2025 including details of the property and the rights concerned. Comments received by that date and time will be considered by the Cabinet Member before a decision is taken.
Dated 6 June 2025
Debbie Jackson – Executive Director Regeneration, Economy & Planning
Lord Mayor and Citizens of the City of Westminster
Westminster City Council, 64 Victoria Street, London, SW1E 6QP

